• 产品
  • 新闻
员工登录
当前位置: 首页 > 工艺解决方案
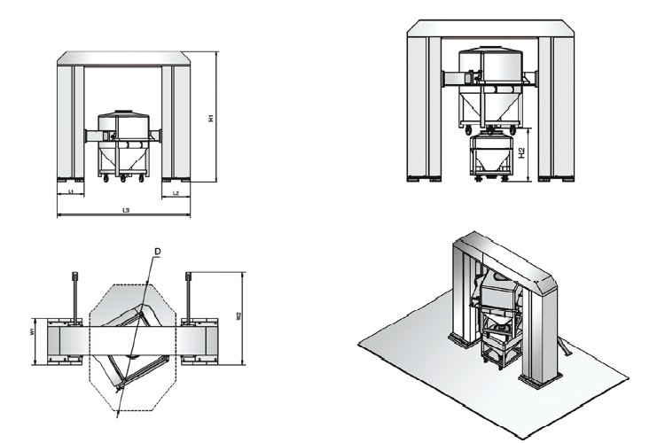
SGTH型双立柱提升混合机
型号:SGTH
立柱提升混合机是我司自主研发的专利技术产品。拥有提升、混合、换桶等功能,可满足多品种不同批量物料的混合要求。用户可根据洁净区面积与产能进行机型选择,设备广泛用于制药、食品、化工等行业。
  • 产品介绍
  • 设备参数

■系统简介

立柱提升混合机是我司自主研发的专利技术产品。拥有提升、混合、换桶等功能,可满足多品种不同批量物料的混合要求。用户可根据洁净区面积与产能进行机型选择,设备广泛用于制药、食品、化工等行业。


■系统特点

■结构简单、无需对位、易于操作

■根据实际需求选择产品类型,灵活性好

■节省空间、产量大、运行平稳

■混合均匀、物料无分层

■自重轻、平稳可靠无死角

■清洗方便、换桶便捷、工作强度低

■兼容清洗站系统和称量系统,清洗与配料便捷


■系统原理

SGTH型双立柱提升混合机由双立柱机架、可夹持料桶、夹持系统、提升系统、驱动系统、制动系统、控制系统组成。该机工作时,进料方式可选择气动或手动方式上料,之后打开防护栏,将料桶推入夹持装置中,人工关闭并锁紧防护栏,设定控制系统混合周期和转速后,夹持系统自动夹持料桶并提升至相应高度进行物料混合。混合结束后,料桶自动回归垂直位置。可选择向上提升对接小料桶出料,也可选择可夹持料桶直接落地出料。

同类设备

版权所有上海智滨科技有限公司  沪ICP备2022031923号-1

地址:上海市浦东新区天雄路199号